この事例をもとに
リノベの相談
場所:仙台リノベスタジオ
天井いっぱいに広がる木の表情と、やわらかな自然光。リビングに足を踏み入れると、時間の流れがふっと穏やかになるような、落ち着いた空気が広がります。
築50年の住まいを、これからの暮らしに合わせて一新。「無理をせず、心地よく暮らしたい」おふたりのこれからを楽しむための住まいとなりました。
年齢も上がり、これからの生活に合わせて住まいを見直すことを決意。自分たちにとって、使い勝手のいい空間にするため全体を整え、これからの時間を気持ちよく過ごせる住まいにしたい。そんな思いから、リノベーションを行うことになりました。
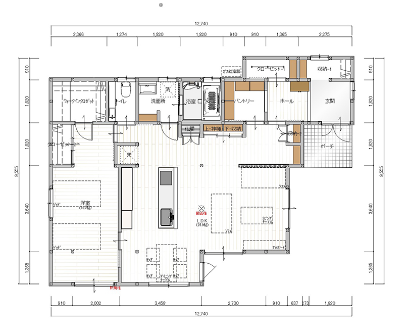
住まいの中心となるLDKは、平屋を活かした勾配天井の開放感のある空間に仕上げました。天井いっぱいに広がる木目と、庭へと視線が抜ける開放的なつくりが、室内にさらにのびやかな広がりをもたらしています。
ひとつなぎの開放的な空間で、リビングとキッチンでそれぞれの時間を過ごしつつ、自然とお互いの気配を感じられるように。またリビングから見える大きな窓の先にはお庭が広がり、季節ごとの緑や光の移ろいを、日常の中で楽しめるようになりました。
朝はやわらかな光に包まれながらふたりで朝食を楽しみ、午後は庭を眺めながらお茶を飲んでくつろぐ。そんな、時間に追われすぎないご夫婦らしい暮らしが、このLDKから生まれています。
天井も高く開放的なLDK空間
リビングの大きな窓からは光がたっぷり降り注ぎます
今回のリノベーションで、奥様がこだわったのが「家事動線」。キッチンから洗面室や水まわりへも行き来しやすい配置にすることで、家事の導線がとてもスムーズに。調理の合間に洗濯や身支度ができるなど、家事の流れが途切れにくくなりました。
また、キッチン横にダイニングテーブルを設けることで食卓までの距離が近くなり、これまで一人で行うことが多かった配膳や後片付けも、自然とご夫婦で声をかけ合いながら行う時間が増えたそうです。家事が「作業」から、日常のひとコマへと変わっていきました。
今回のリノベーションでは断熱性能も向上させ、住まい全体の温熱環境を改善。以前は「冬の台所がとにかく寒くて長く立っていられなかった」というお話もありましたが、今では季節を問わず快適に過ごせる場所となり、キッチンに立つ時間そのものが心地よいものへと変わっています。

キッチンとダイニングテーブルの行き来も、スムーズで快適に
冬でも快適に過ごせるキッチンスペース
住まいが変わったことで、ご夫婦の生活にも自然な変化が生まれました。家の中で過ごす時間が増え、季節や一日の流れをより身近に感じられるように。
無理をせず、背伸びもしない。けれど、これから先を見据えた「ちょうどいい心地よさ」が、この住まいにはあります。
「以前は寒さや使いにくさが気になっていましたが、今は家のどこにいても落ち着いて過ごせます。庭を眺めながら、ふたりでゆっくり過ごす時間が増えたのも嬉しいですね。」
これから先の暮らしを、穏やかに、そして長く楽しんでいける住まいが完成しました。
大きなソファーはそれぞれくつろいだり来客時にも多様に活用できます
明るい光が差し込むダイニングでとる食事はいっそう美味しく感じられそう

寝室も広々空間に

寝室奥には大容量のウォークインクローゼット

玄関まわりの収納も充実

玄関横にある飾り穴ニッチが住まいを彩ります

キッチン収納も充実

外装も含め一新した住まい

場所:仙台リノベスタジオ


中古マンション×リノベーションについて相談しよう!!
中古マンション×リノベーションについて相談しよう!